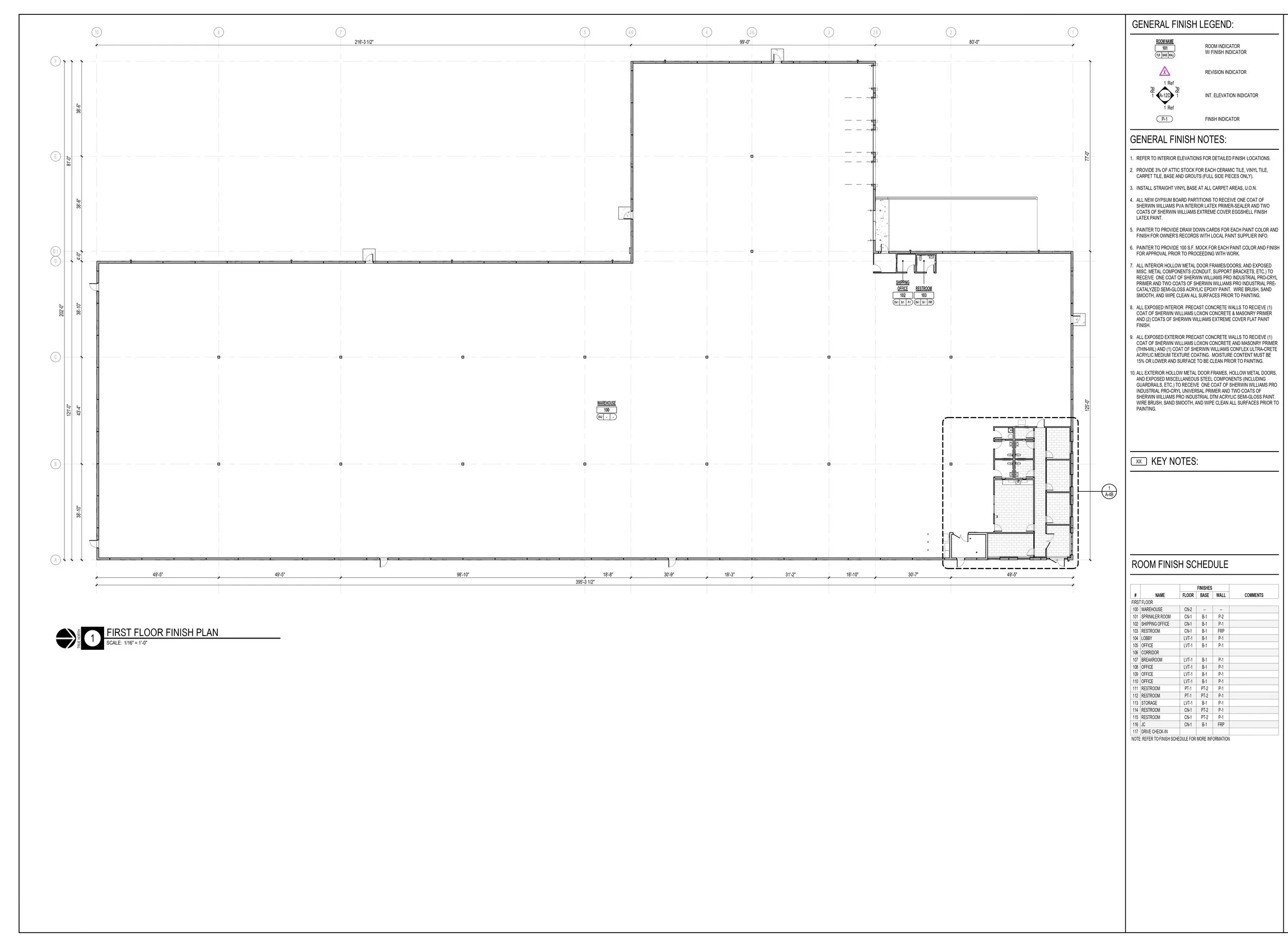
Pre-Cast Concrete Warehouse

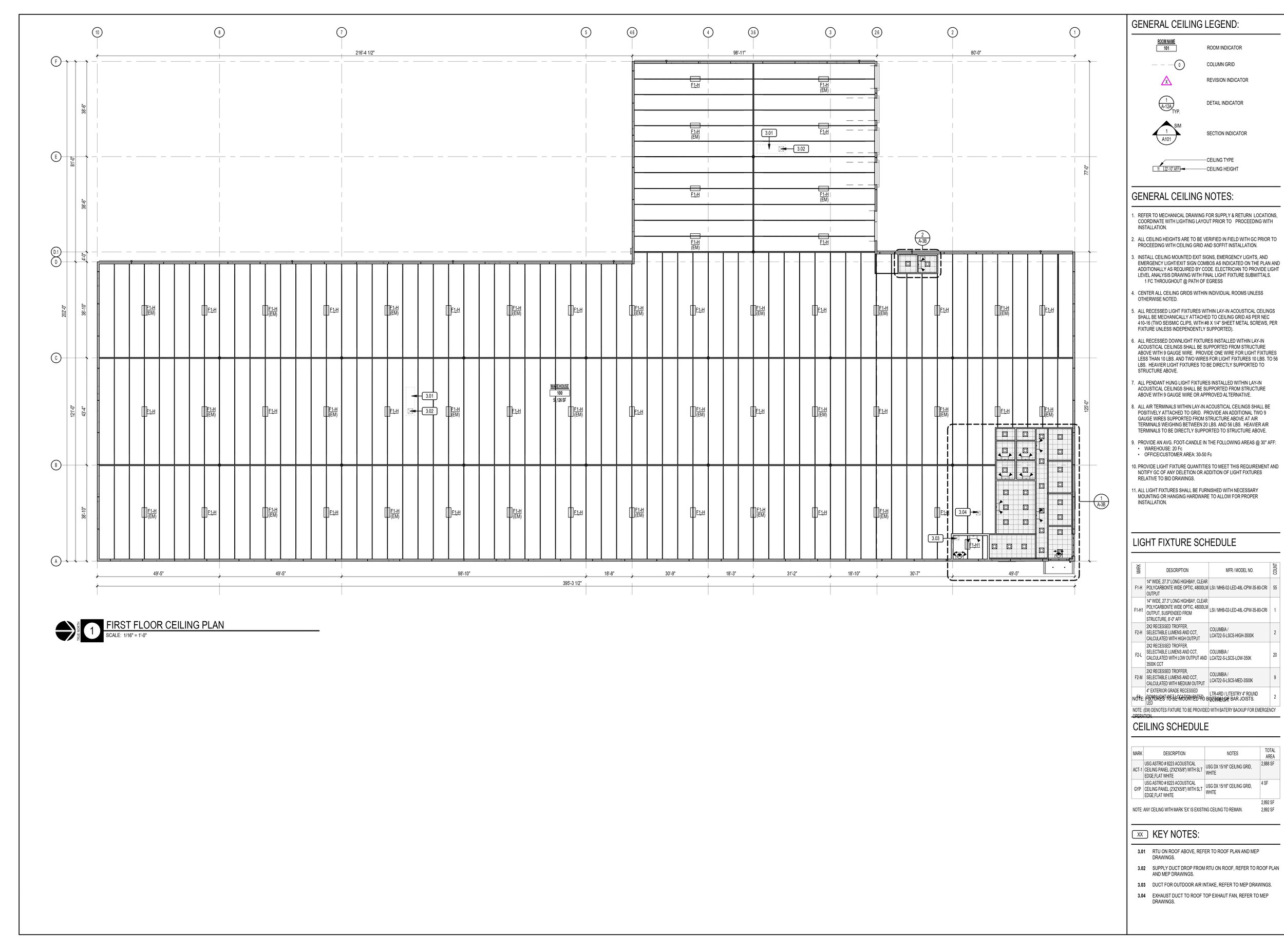
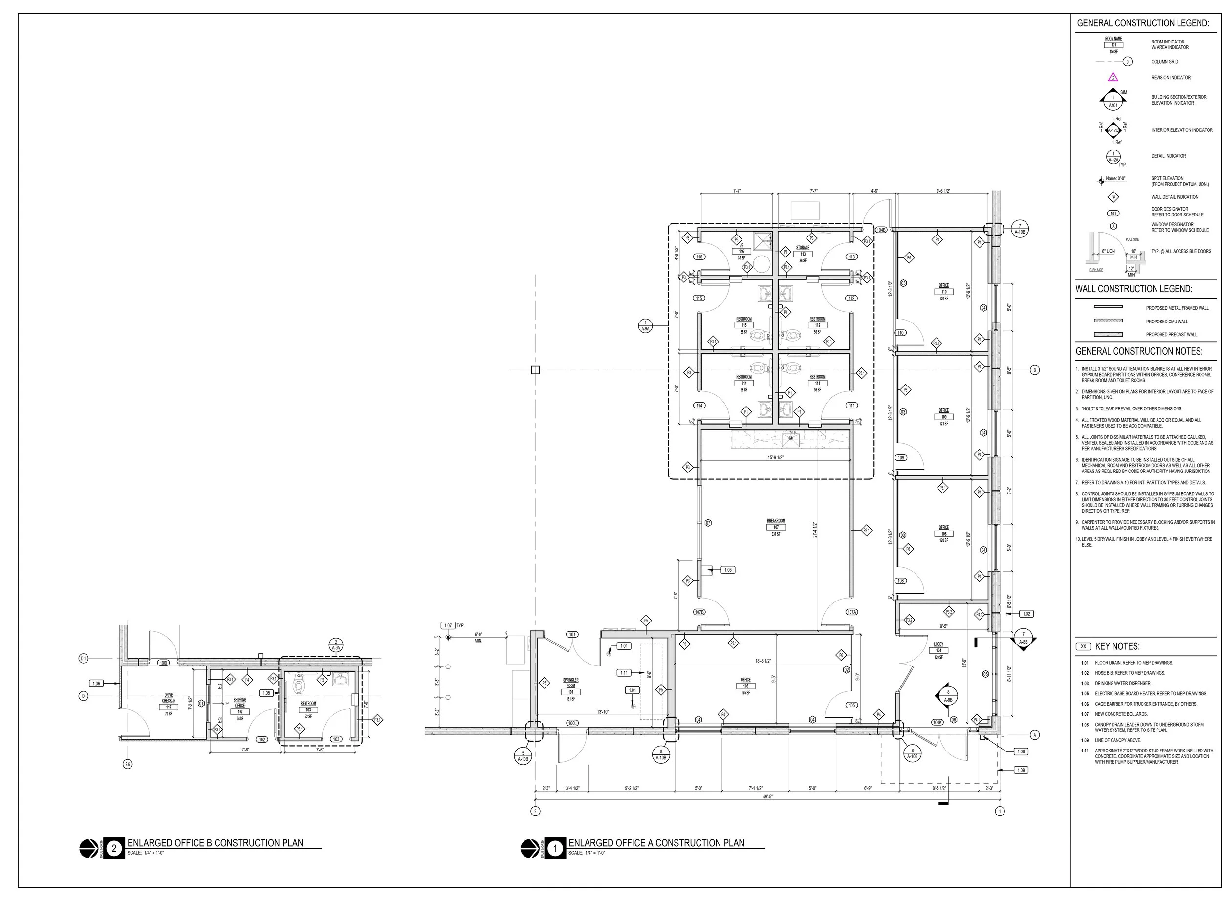
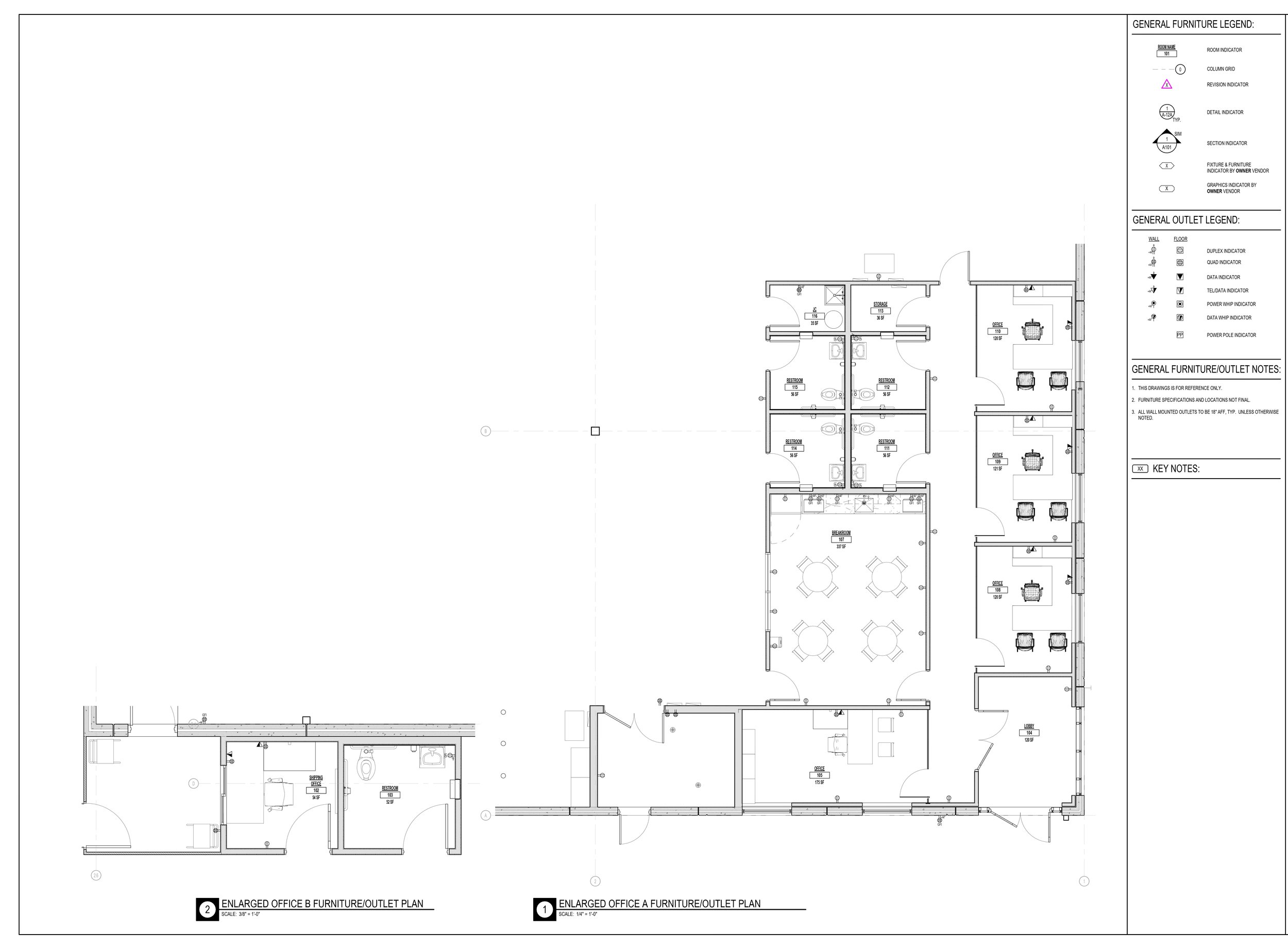
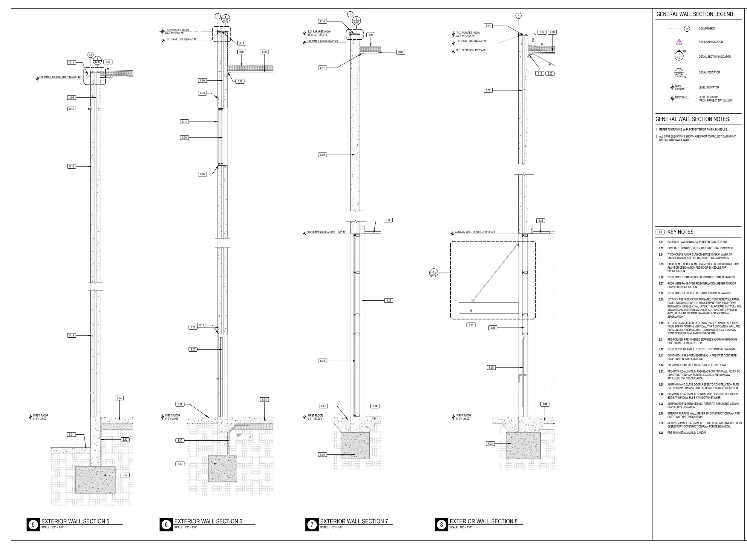
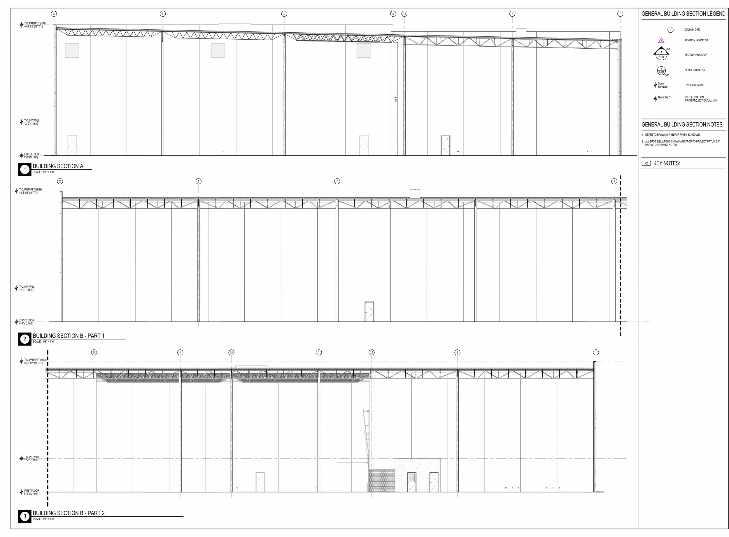
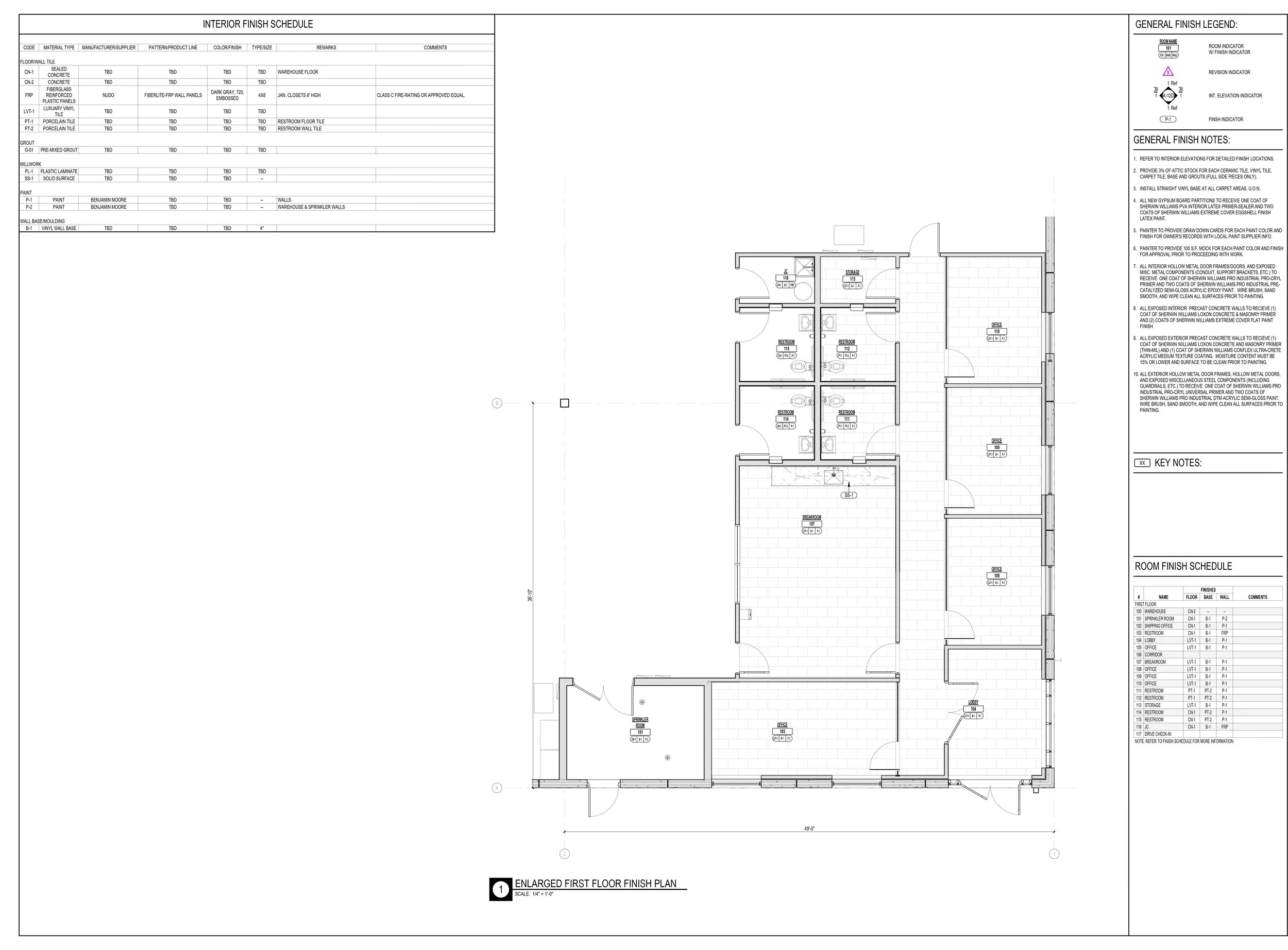
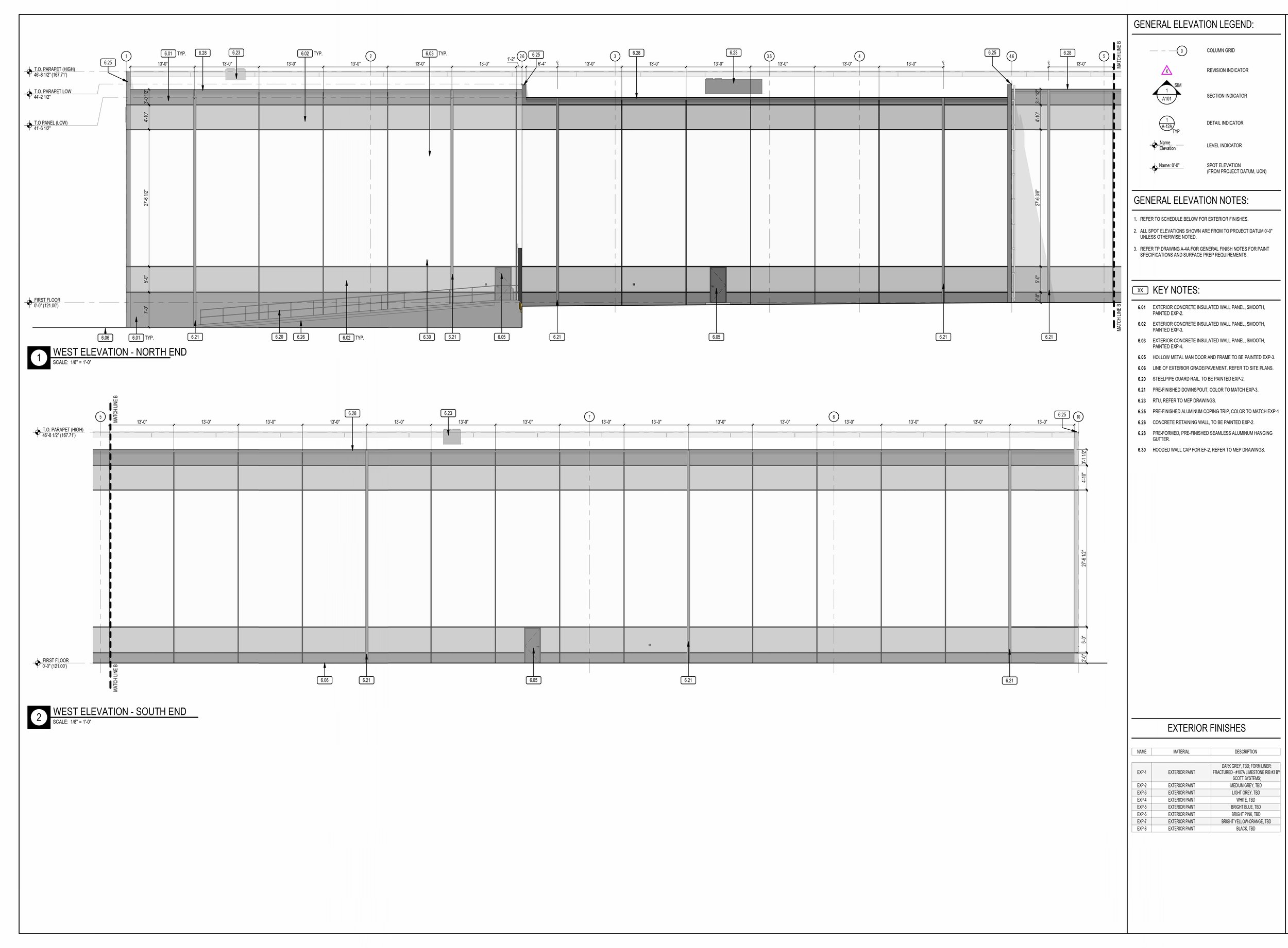
This project documents ground up construction of a pre-cast concrete panel warehouse to include an updated first floor office space, loading dock office, four loading docks, one drive-in door, and storage space. The project is still in the Construction Documentation stage.

This project was developed at a professional architecture firm and represents collaborative work. The construction documents were produced by me and reviewed by the QA/QC department.

Previous
Previous

Cold Storage Warehouse

Next
Next

Pre-Engineered Service Building