Pre-Engineered Service Drive

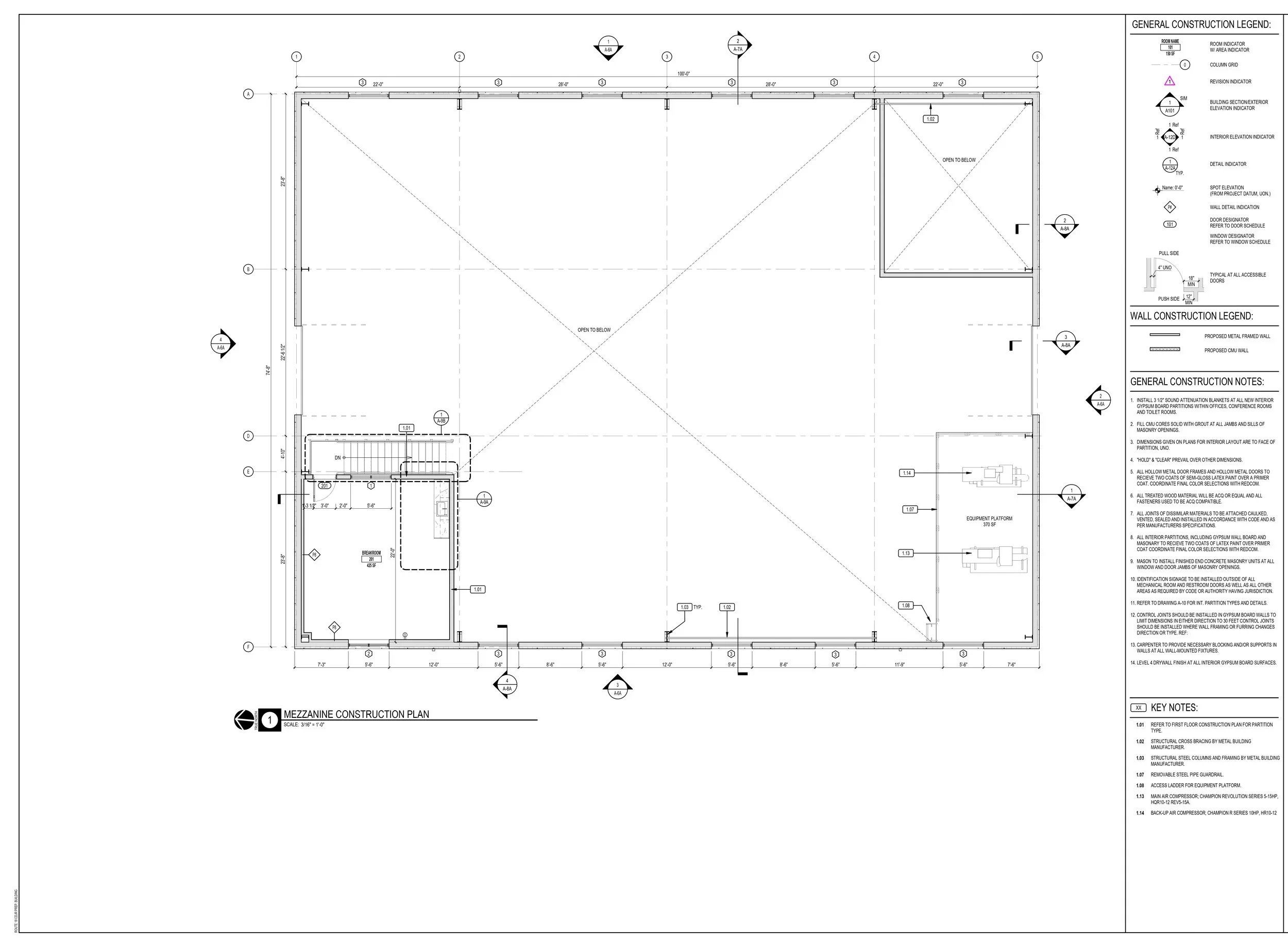
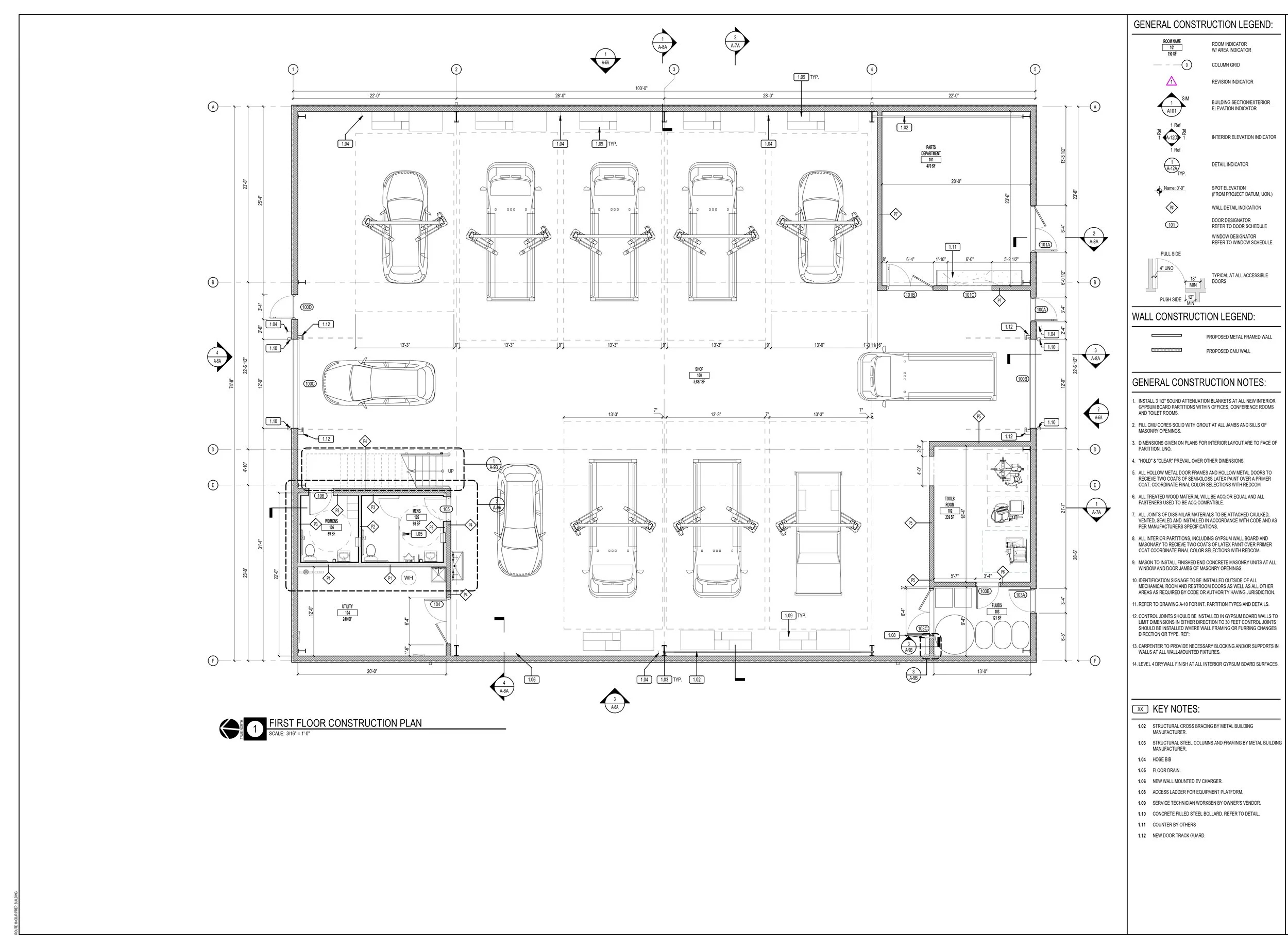
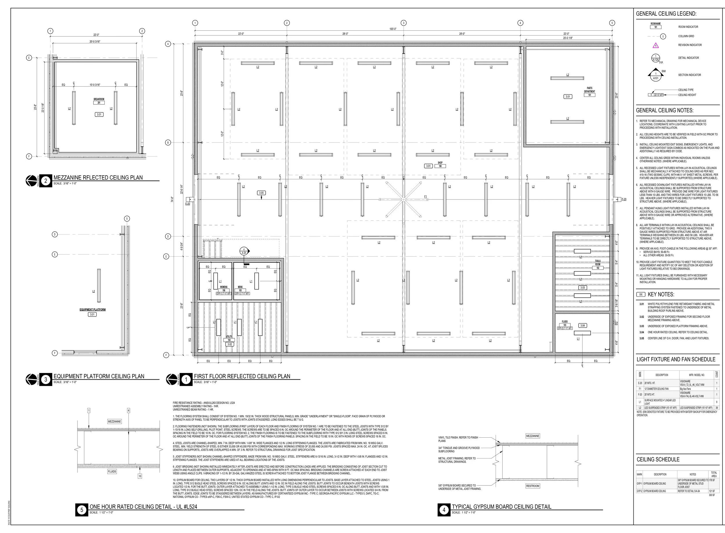
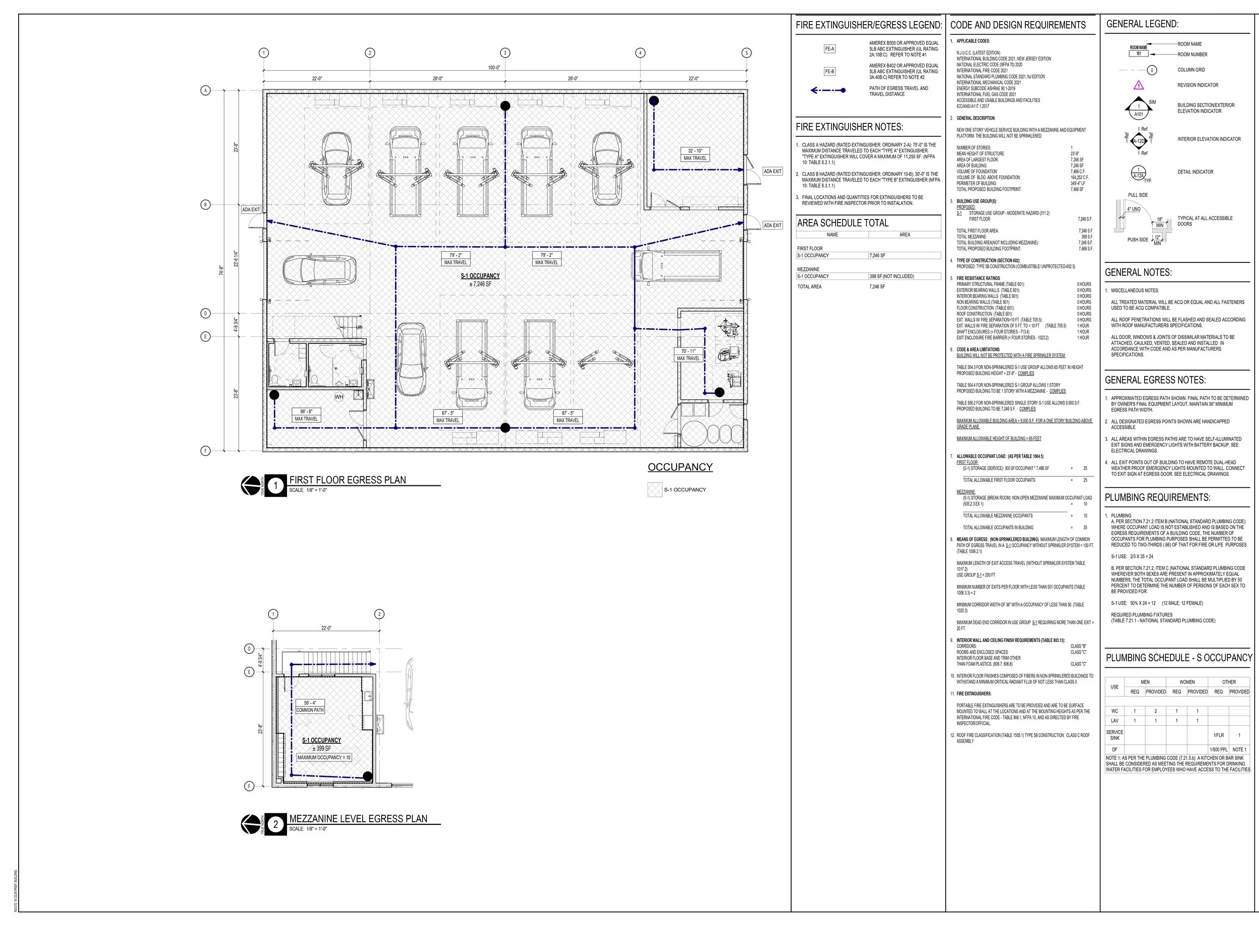
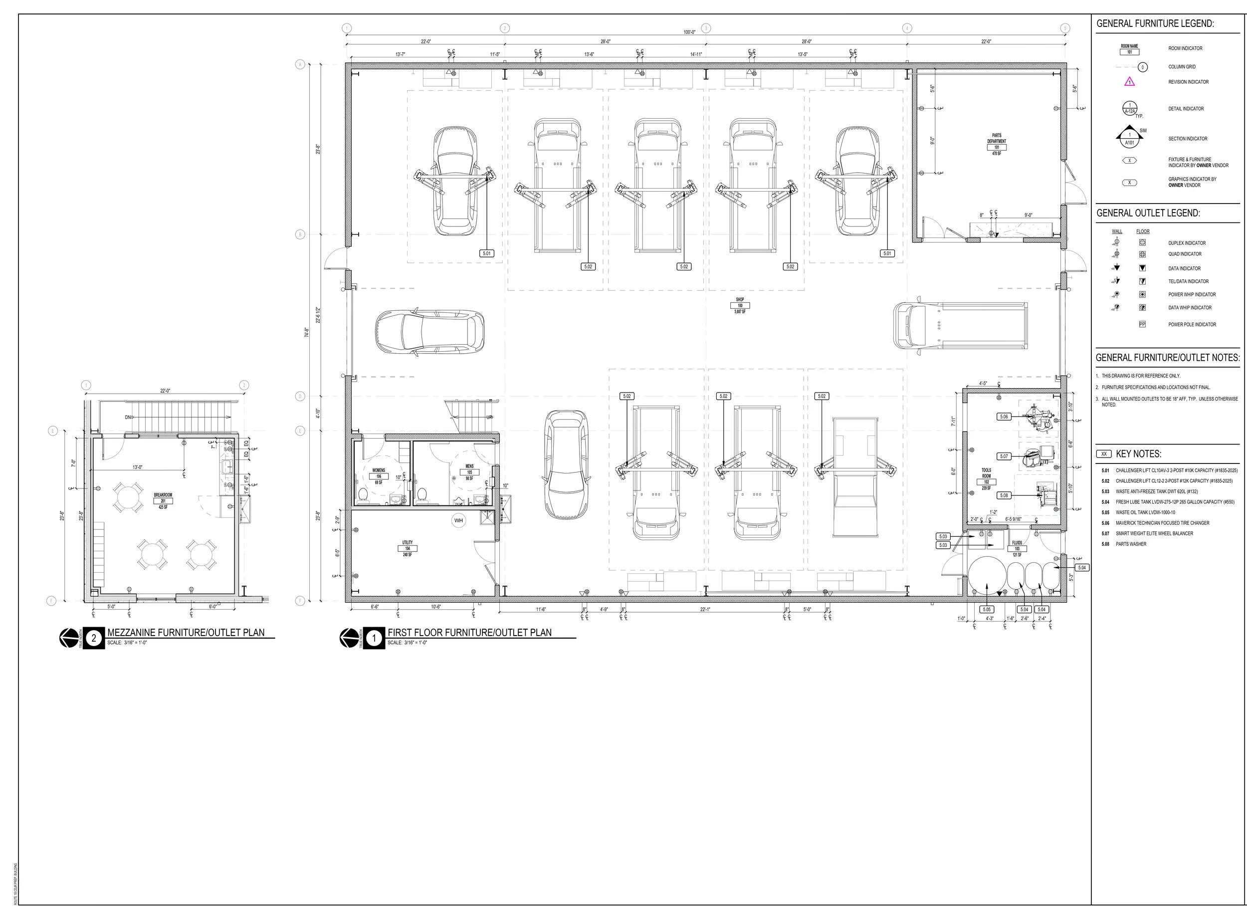
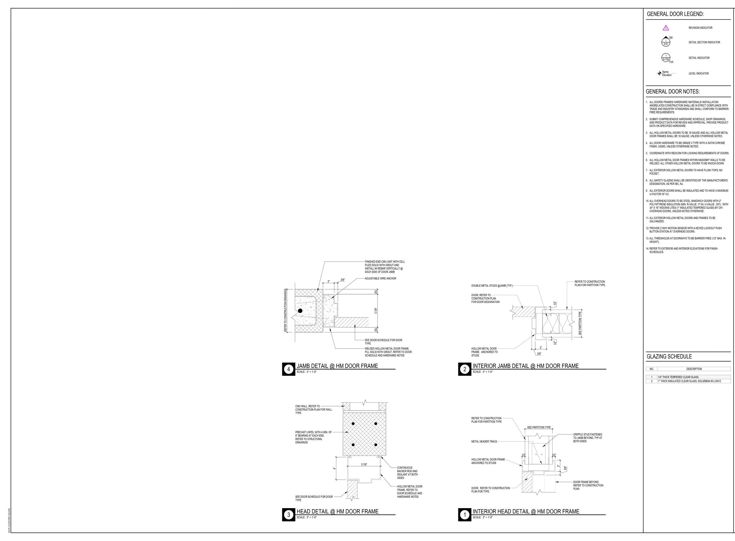
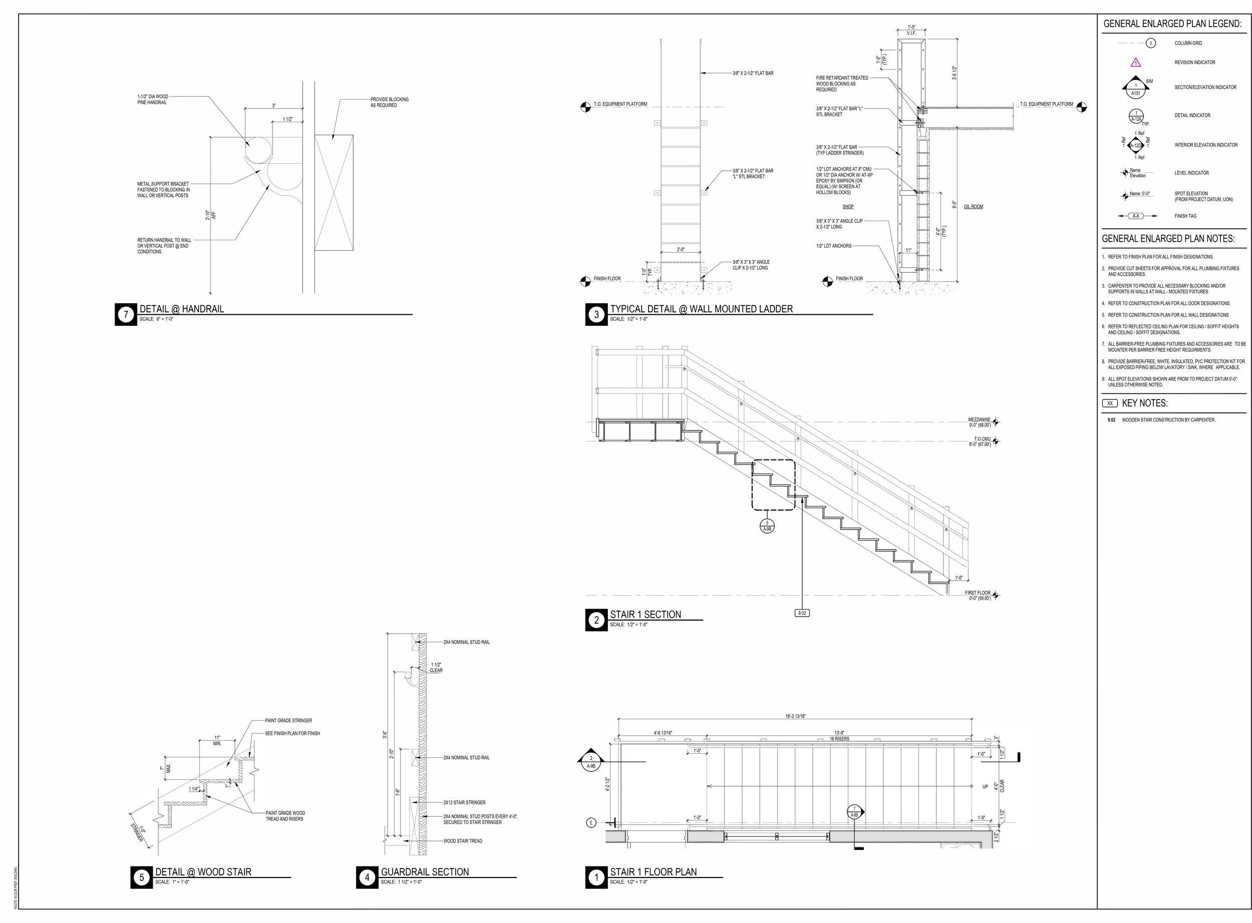
This project documents ground up construction of a pre-engineered service drive to include 9 car lifts, parts storage, tool room, fluid and oil room, restrooms, mechanical/electrical room, and second floor break room. The project is currently in the Construction Documentation phase.

This project was developed at a professional architecture firm and represents collaborative work. The construction documents were produced by me and reviewed by the QA/QC department.

Previous
Previous

Pre-Cast Concrete Warehouse

Next
Next

Low Income Multi-Family Housing