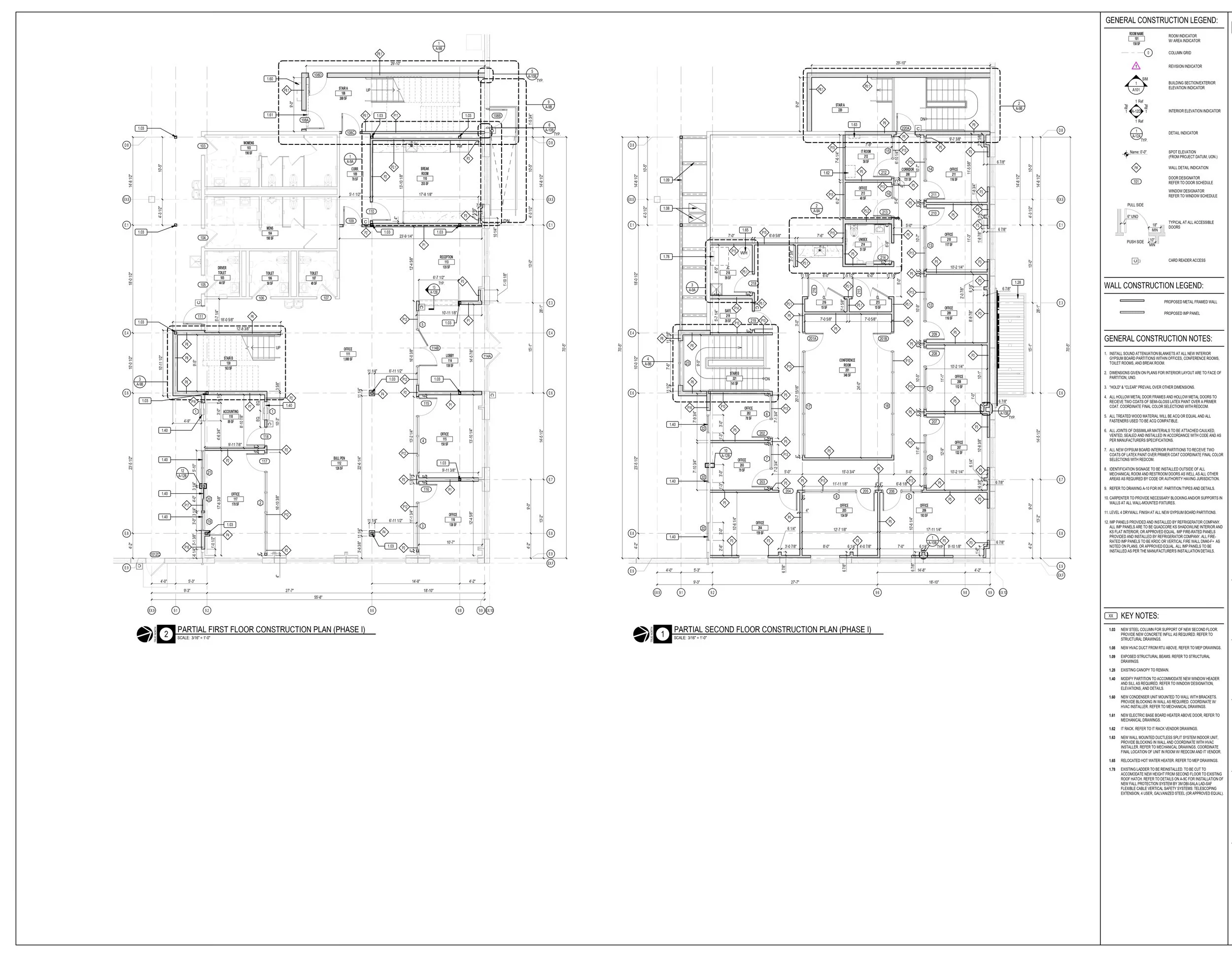
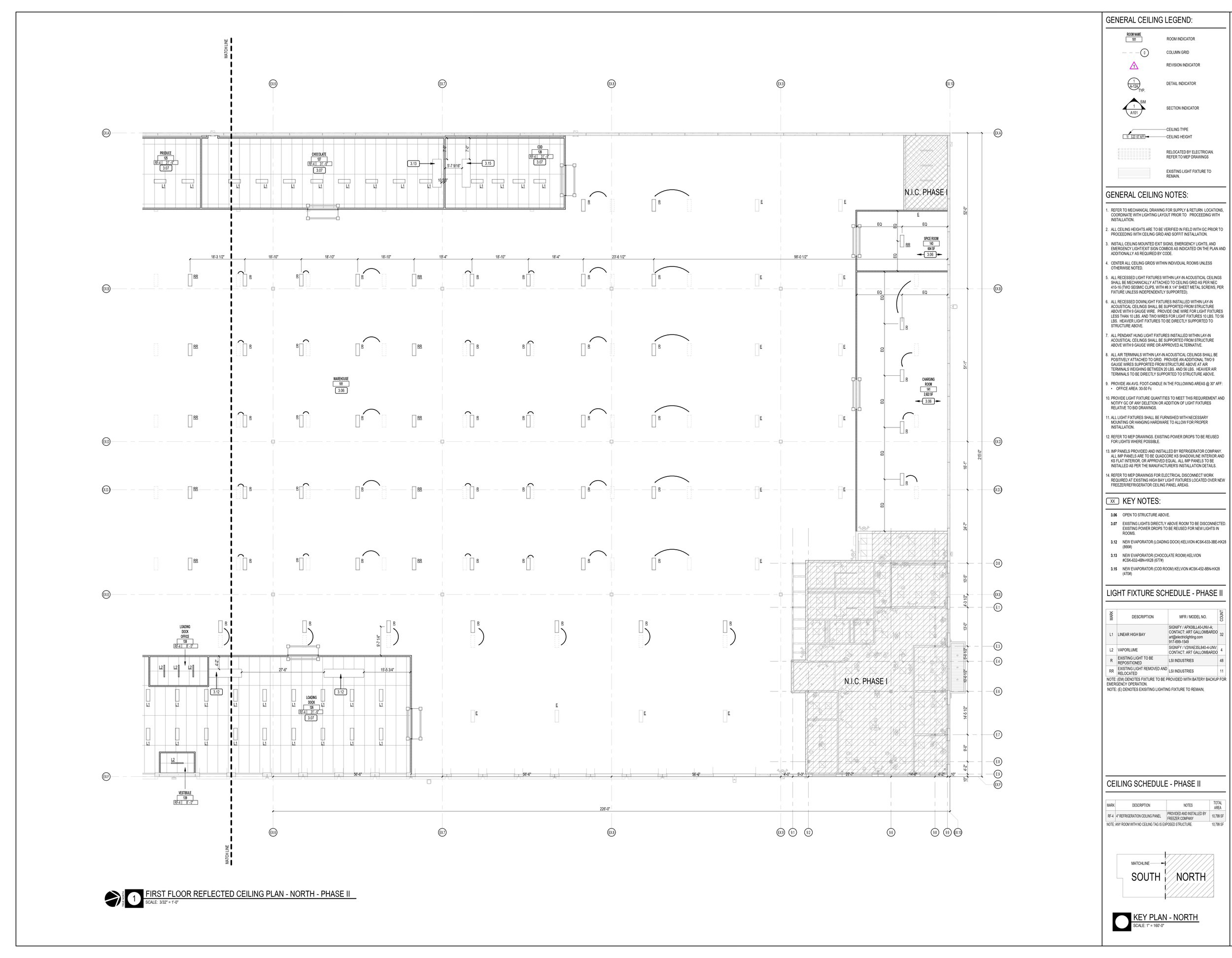
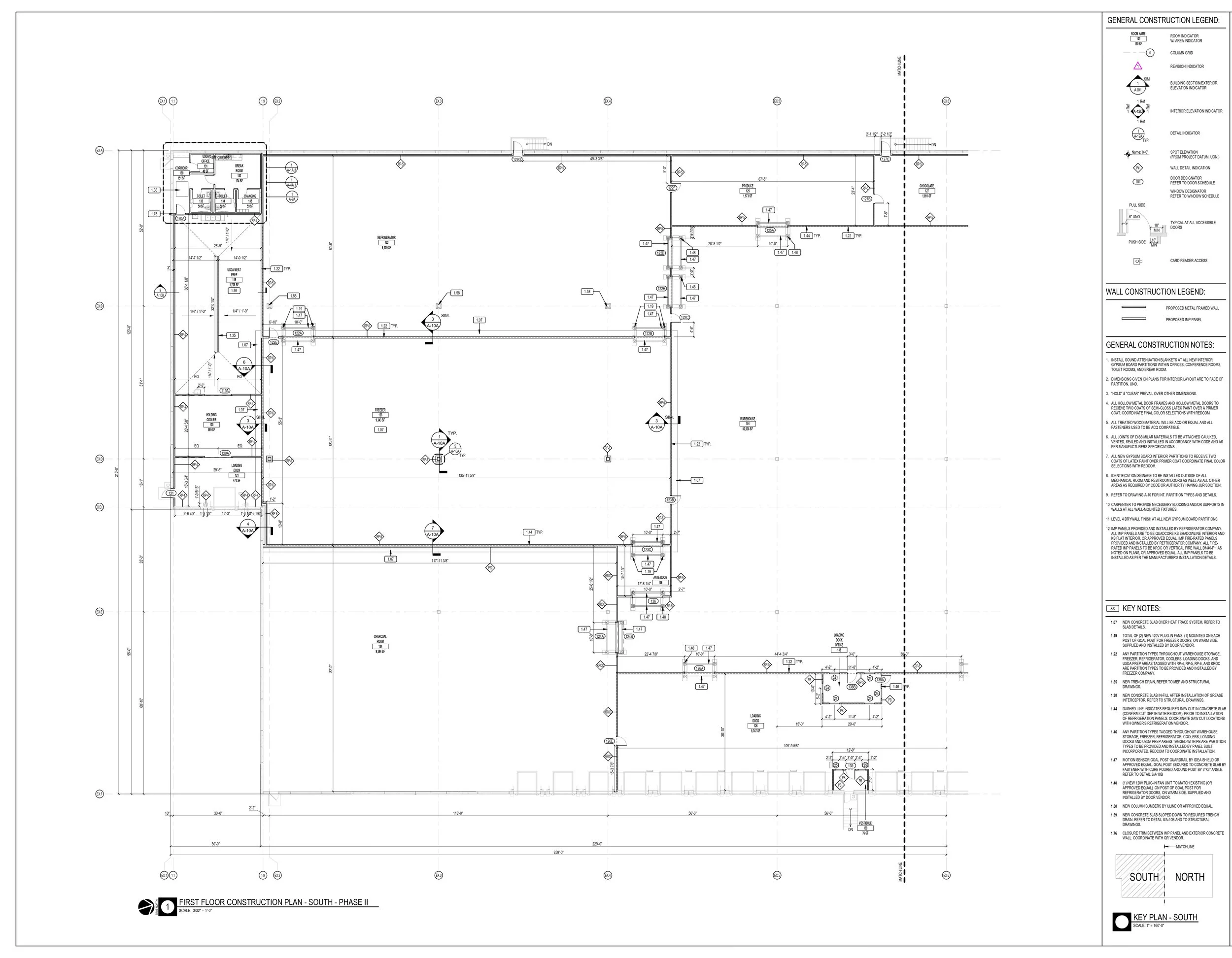
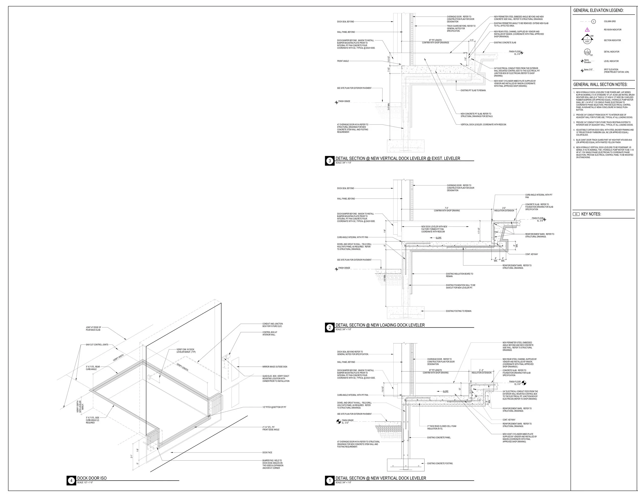
Cold Storage Warehouse

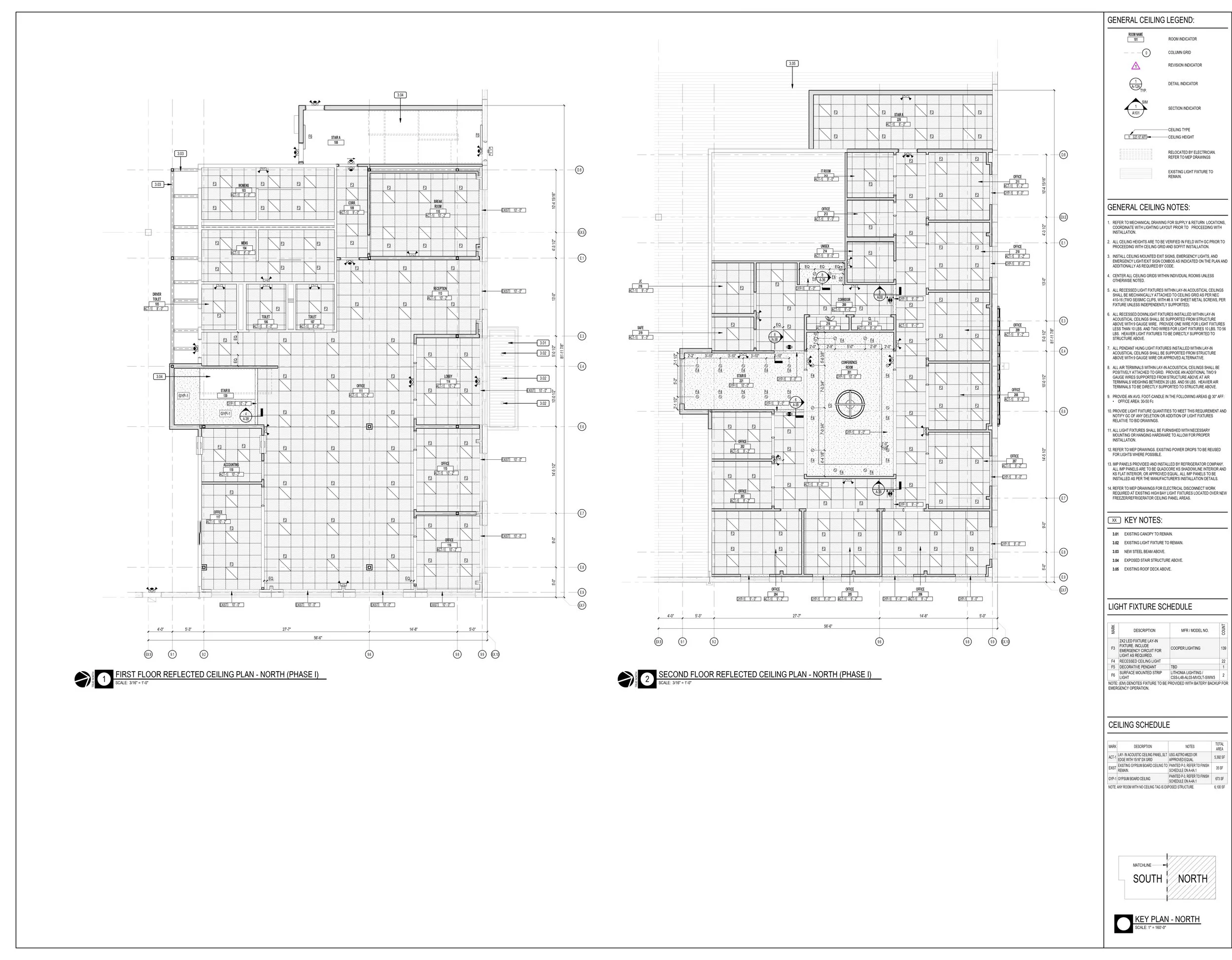
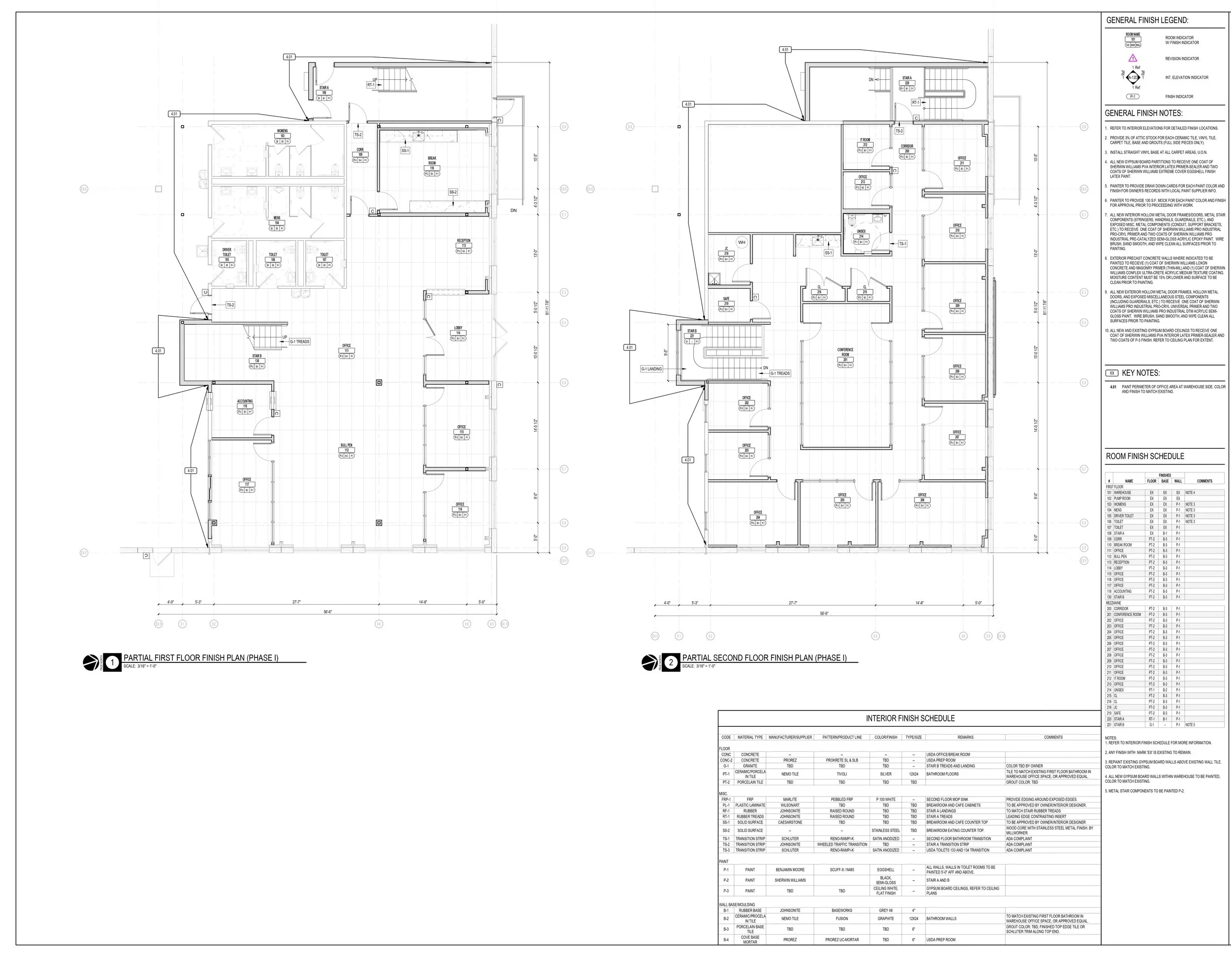
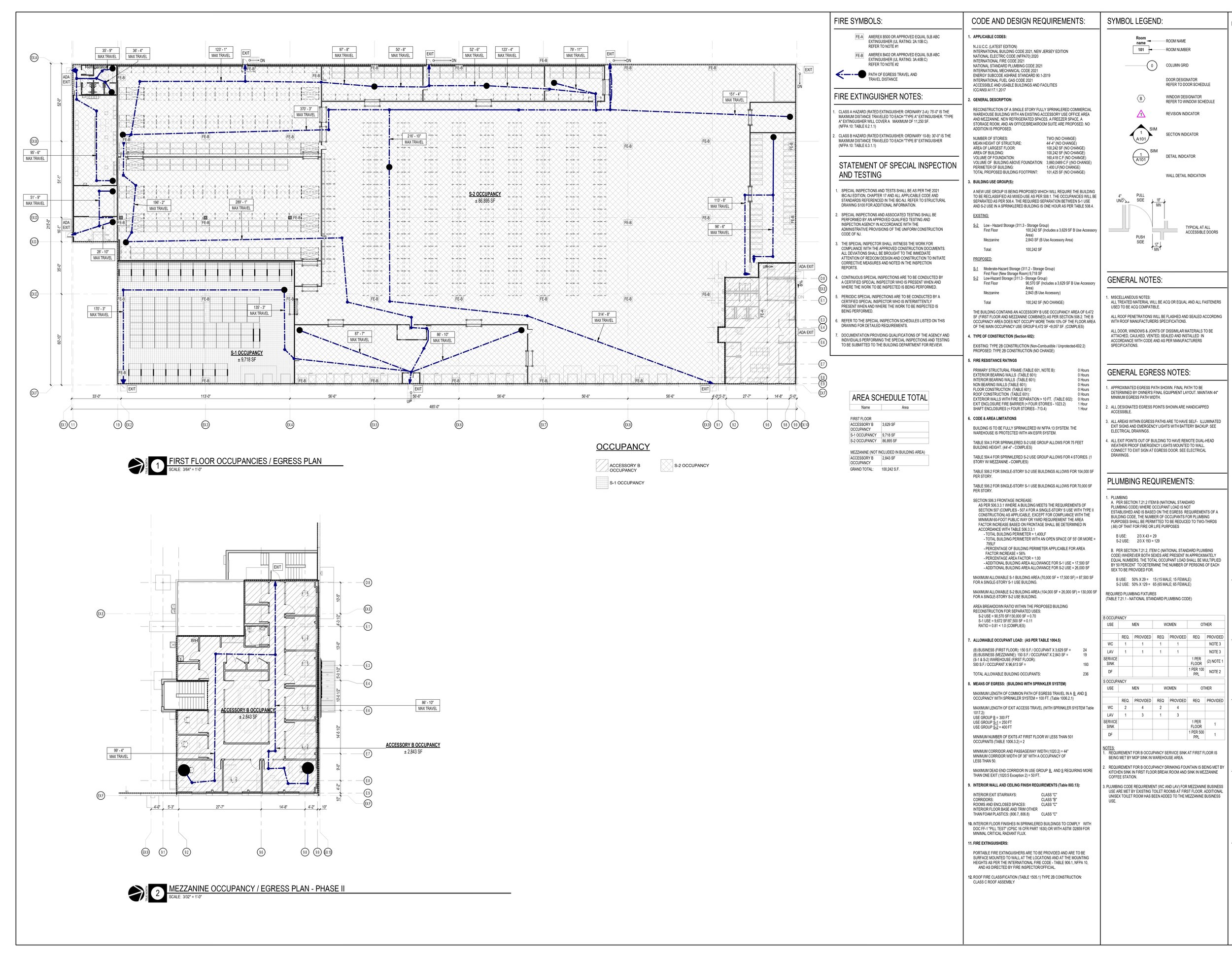
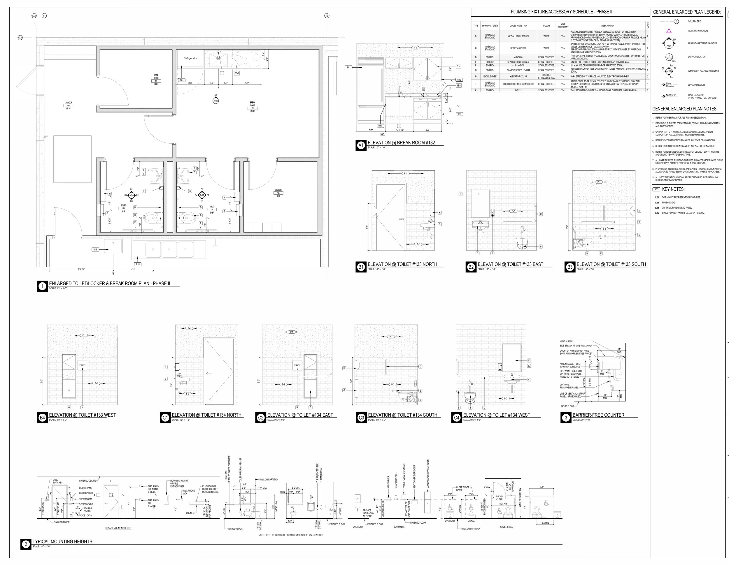
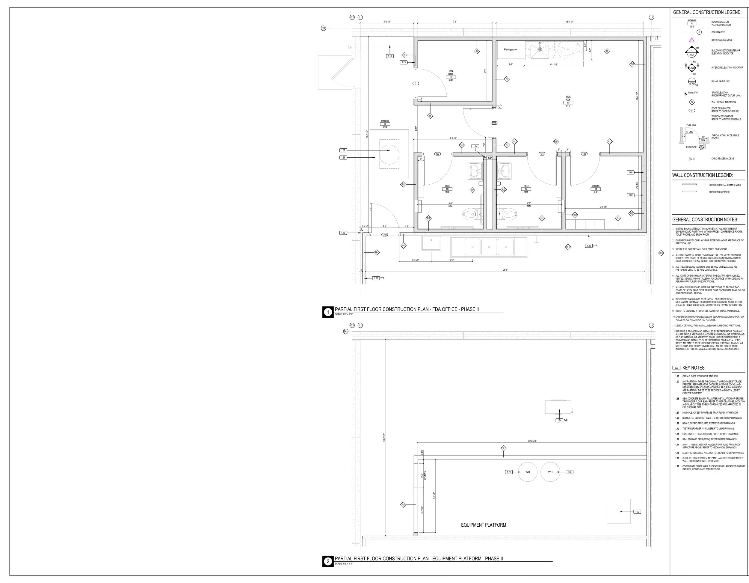
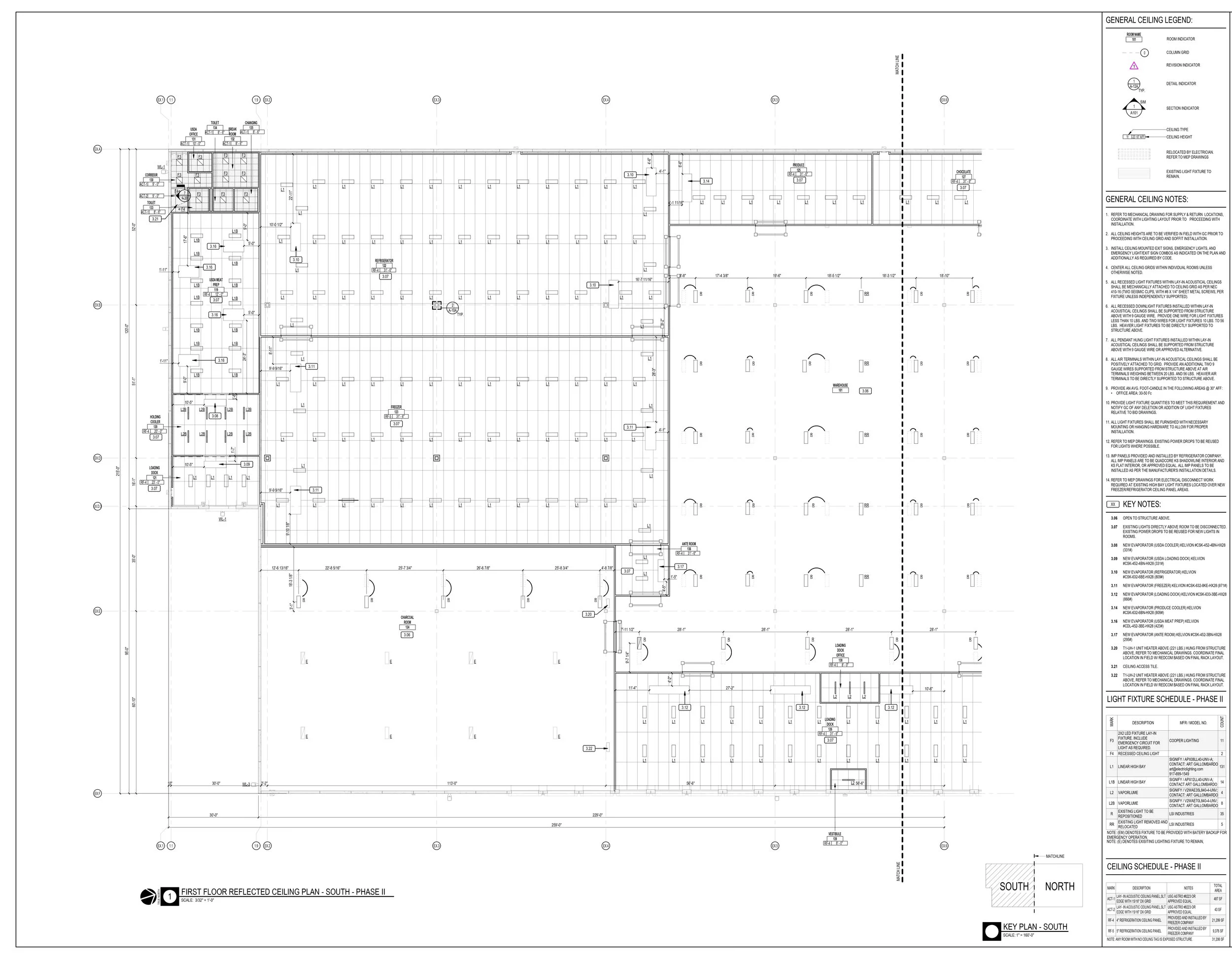
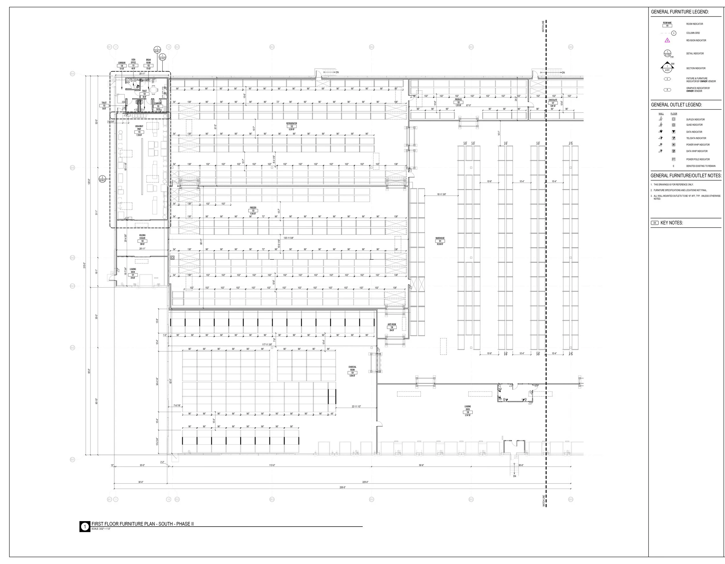
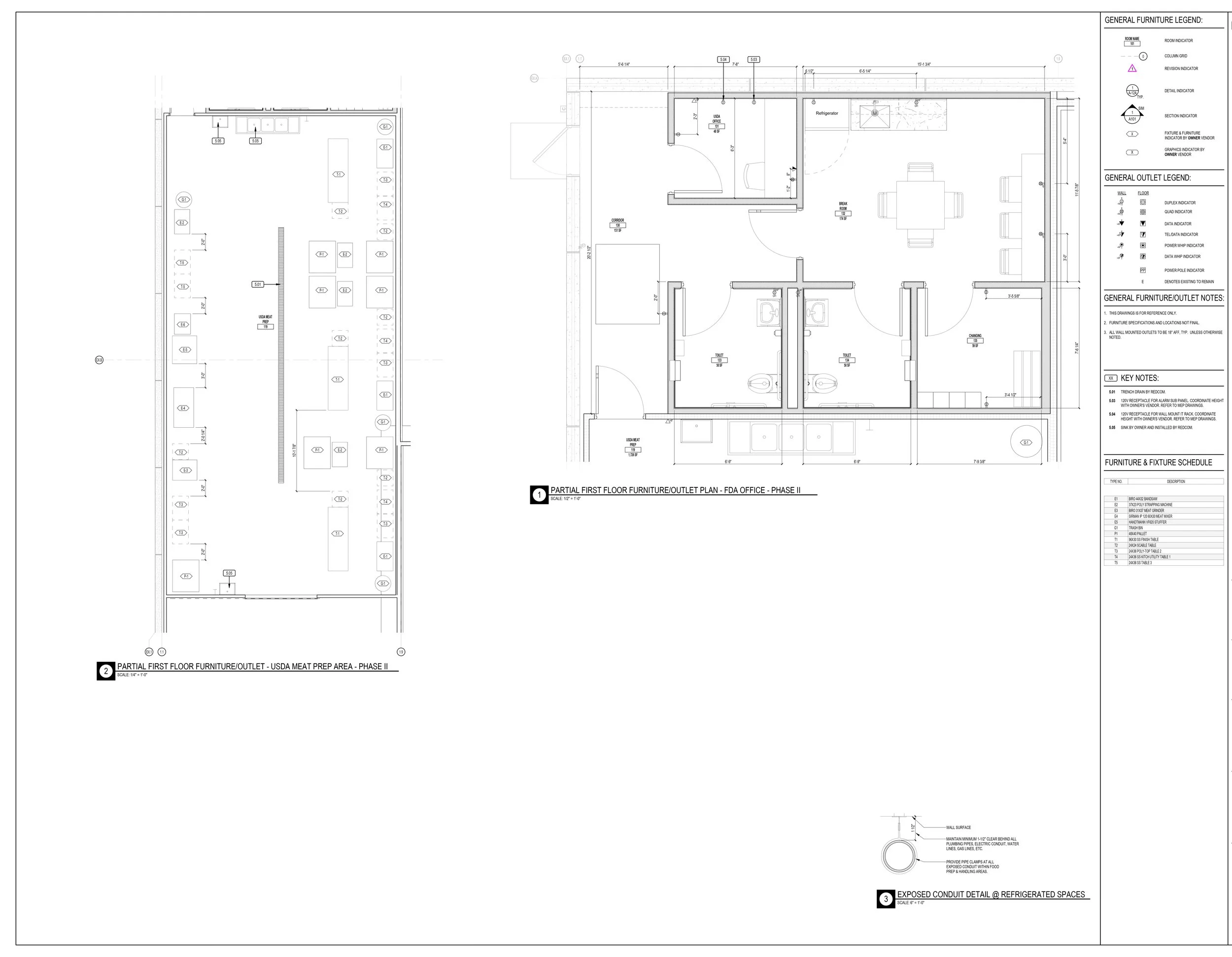
This project documents the interior fit-out of an existing warehouse to include an updated first and second floor office space as well as cold storage rooms and a USDA meat processing area. The project was split into two phases and is currently under construction.

This project was developed at a professional architecture firm and represents collaborative work. The construction documents were produced in collaboration by coworkers and myself.

Previous
Previous

Commercial Interior Fit-Out

Next
Next

Pre-Cast Concrete Warehouse